Добро пожаловать на http://vipplan.ru

Випплан Дюртюли - это тысячи проектов домов в нашем каталоге!

Вы всегда сможете найти для себя проект дома вашей мечты! Даже если этого не случилось, мы готовы в любую минуту предложить проект индивидуального дома.

Забыли пароль?
Вы еще не регистрировались?

Перейдите по ссылке ниже на страницу регистрации.

Регистрация...

Внимание!!!

В проектную документацию могут быть внесены изменения любой сложности, в соответствии в Вашими пожеланиями!

Полезные статьи

Монолитный коттедж с несъемной опалубкой

Перед тем, как вы задумаетесь о строительстве своего коттеджа, необходимо выбрать, сами вы будете руководить строительством, нанимать разных рабочих, или будете обращаться в строительную фирму, и заключать с ними договор. Но даже к этому вопросу нужно подходить правильно, обдумав все плюсы и минусы выбора....

Применение свайных фундаментов

Сваи представляют собой длинные стержни, погруженные глубоко в грунт или изготовленные непосредственно в грунте. Покупные сваи с одной стороны имеют заостренный конец, который забивается в почву с помощью специальной техники. Установка свай, изготовленных своими руками, предполагают бурение скважин, армирование и заливку бетонного раствора. ...

Проекты домов и коттеджей > Каталог проектов домов > Дом с мансардой и балконом Vg2427

Дом с мансардой и балконом Vg2427

Дом с мансардой и балконом
Зарегистрируйтесь

Проект № Vg2427


Техническое описание
Общая площадь: 107.07 м2
Жилая площадь: 56.22 м2
Высота здания: 8.03 м
Размеры дома: 7.66м×10.46м
Кол-во комнат: 4
Цокольный этаж: нет
Гараж: нет
Мансарда: есть

Kонструкция
Фундамент: Монолитный ж/б ("щелевой")
Перекрытия: Сборные ж/б плиты
Материал стен: Кирпич

Архитектурный раздел
Конструктивный раздел
АР+КР - 48 000 (Со скидкой 20%)
Проект одноэтажного жилого дома с мансардой с размерами здания 7,66 x 10,46 м. Фундамент - монолитный ж/б ("щелевой"). Наружные стены - забутовочный кирпич, минераловатные плиты и отделка фасадной штукатуркой. Внутренние стены: забутовочный кирпич. Перегородки - забутовочный кирпич. Пол первого этажа - пол по грунту. Межэтажное перекрытие - сборные ж/б плиты. Крыша - двускатная. Кровля - металлочерепица. Окна - металлопластиковые. Лестница - монолитная ж/б.
Генплан застройки участка / Паспорт проекта 7000 руб / 10000 руб
Инженерный раздел (полный) 53500 руб
Смета на строительство 26750 руб
Теплотехнический расчет материалов стен Бесплатно
Стоимость проекта со незначительнми изменениями 57300 руб
Стоимость проекта со средними изменениями* 65400 руб
Стоимость проекта со значительными изменениями** 67500 руб

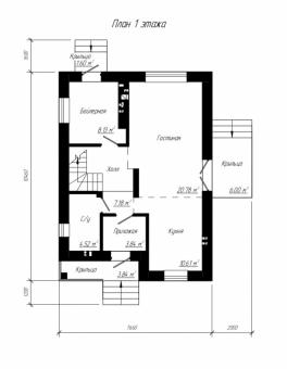
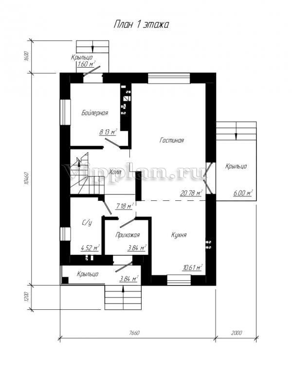
План первого этажа


Прихожая - 3,84 кв м
Кухня - 10,61 кв м
Гостиная - 20,78 кв м
Бойлерная - 8,13 кв м
Холл - 7,18 кв м
С/у - 4,52 кв м

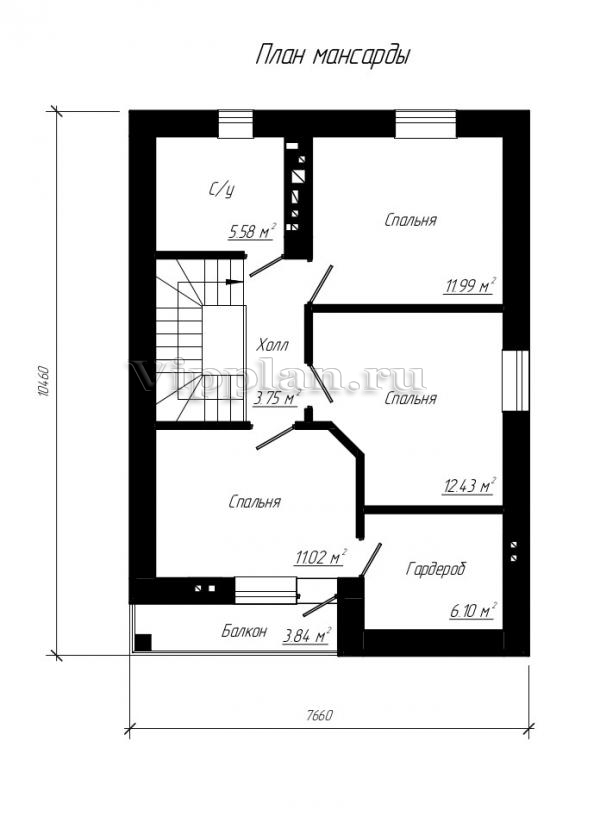
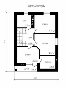
План мансардного этажа


Холл - 3,75 кв м
С/у - 5,58 кв м
Спальня - 11,99 кв м
Спальня - 12,43 кв м
Гардероб - 6,10 кв м
Спальня - 11,02 кв м
Балкон — 1,15 кв м
Дом с мансардой и балконом Дом с мансардой и балконом Дом с мансардой и балконом Дом с мансардой и балконом

Модификации проектов

Внесение изменений и привязка к участку строительства

В любой из проектов от компании VIPplan - Дюртюли по вашему желанию могут быть внесены изменения в материалы стен, материалы наружной отделки дома, а также будет произведена адаптация проекта под конкретный регион строительства (с учетом грунтов региона, геологических особенностей вашего участка и местных климатических условий) - БЕСПЛАТНО !!! (кроме проектов со скидкой и проектов наших партнеров).

Любой из проектов, размещенных на сайте dyurtyuli.vipplan.ru мы можем выполнить из требуемых вам строительных материалов: ячеистый бетон (газобетон, пеноблок), керамоблок, кирпич, шлакоблок, бетонный блок, дерево (брус, клееный брус), каркасная технология (деревянный каркас, металлокаркас (ЛСТК)).

Фасад дома и его наружную отделку так же возможно выполнить с применением различных облицовочных материалов: структурной штукатурки, (с утеплителем и без), сайдингом (пластиковый или металлосайдинг), фиброплитами, кирпича.

 
6 Избранные
проекты

Доставка проектов по России: Москва (Московская область), Санкт-Петербург (Ленинградская область), Краснодар, Ростов-на-Дону, Ставрополь, Сочи, Волгоград, Новосибирск, Белгород, Брянск, Воронеж, Саратов, Хабаровск, Астрахань, Нальчик, Владикавказ, Екатеринбург, Тюмень, Самара, Нижний Новгород, Казань, Пермь, Уфа, Челябинск, Красноярск, Ханты-Мансийск, Иркутск, Курган, Оренбург, Омск, Томск, Барнаул, Новокузнецк, Кемерово, Абакан, Чита, Якутск, Южно-Сахалинск, Петропавловск-Камчатский и страны ближнего зарубежья: Белоруссия, Украина, Казахстан