Добро пожаловать на http://vipplan.ru

Випплан Дюртюли - это тысячи проектов домов в нашем каталоге!

Вы всегда сможете найти для себя проект дома вашей мечты! Даже если этого не случилось, мы готовы в любую минуту предложить проект индивидуального дома.

Забыли пароль?
Вы еще не регистрировались?

Перейдите по ссылке ниже на страницу регистрации.

Регистрация...

Внимание!!!

В проектную документацию могут быть внесены изменения любой сложности, в соответствии в Вашими пожеланиями!

Полезные статьи

Виды фундаментов

Можно смело сказать, что самое главное качество фундамента - надежность. Фундамент дома бывает нескольких видов. Все они отличаются прочностью, технологией закладывания и областью использования. Запомните, экономить на фундаменте – плохая идея. Затраты на ремонт будут огромными, а зачастую в случае нарушения технологии закладки фундамента исправить ошибку будет невозможно....

Установка систем вентиляции

Проектирование и установка систем вентиляции начинается на этапе создания проекта дома, в котором, наряду с газо- и электрификацией, водоснабжением и системой канализации, проектируется система вентиляции...

Проекты домов и коттеджей > Каталог проектов домов > Проект уютного одноэтажного дома с мансардой Vg2238

Проект уютного одноэтажного дома с мансардой Vg2238

Проект уютного одноэтажного дома с мансардой
Зарегистрируйтесь

Проект № Vg2238


Техническое описание
Общая площадь: 127.43 м2
Жилая площадь: 53.76 м2
Высота здания: 8.15 м
Размеры дома: 8.64м×11.84м
Кол-во комнат: 4
Цокольный этаж: нет
Гараж: нет
Мансарда: есть

Kонструкция
Фундамент: монолитная ж/б плита
Перекрытия: сборные ж/б плиты
Материал стен: Бетонные блоки

Архитектурный раздел
Конструктивный раздел
АР+КР - 52 000 (Со скидкой 20%)
Проект индивидуального одноэтажного жилого дома с мансардой с размерами здания 8,64 x 11,84 м. Наружная отделка здания – сайдинг. Фундамент –монолитная ж/б плита. Наружные стены - арболитовые блоки, с утеплением и отделкой сайдингом. Внутренние стены - арболитовые блоки. Перегородки – арболитовые блоки. Пол первого этажа - по монолитной плите. Межэтажное перекрытие - монолитная ж/б плита. Крыша двускатная. Кровля – битумная черепица. Окна — металлопластиковые
Генплан застройки участка / Паспорт проекта 7000 руб / 10000 руб
Инженерный раздел (полный) 63500 руб
Смета на строительство 31750 руб
Теплотехнический расчет материалов стен Бесплатно
Стоимость проекта со незначительнми изменениями 61800 руб
Стоимость проекта со средними изменениями* 71400 руб
Стоимость проекта со значительными изменениями** 73900 руб

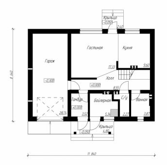
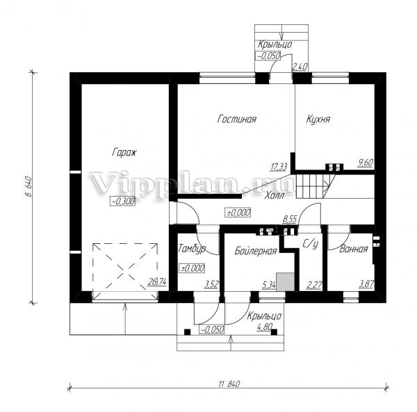
План первого этажа


Тамбур — 3,52 кв м
Холл — 8,55 кв м
Гостиная — 17,33 кв м
Кухня — 9,6 кв м
Бойлерная — 5,34 кв м
С/у — 2,27 кв м
Ванная — 3,87 кв м
Гараж — 26,74 кв м

План мансардного этажа


Холл — 4,97 кв м
Спальня — 13,16 кв м
Спальня — 10,25 кв м
Спальня — 13,02 кв м
С/у — 5,88 кв м
Парная — 3,43 кв м
Проект уютного одноэтажного дома с мансардой Проект уютного одноэтажного дома с мансардой Проект уютного одноэтажного дома с мансардой Проект уютного одноэтажного дома с мансардой
Внесение изменений и привязка к участку строительства

В любой из проектов от компании VIPplan - Дюртюли по вашему желанию могут быть внесены изменения в материалы стен, материалы наружной отделки дома, а также будет произведена адаптация проекта под конкретный регион строительства (с учетом грунтов региона, геологических особенностей вашего участка и местных климатических условий) - БЕСПЛАТНО !!! (кроме проектов со скидкой и проектов наших партнеров).

Любой из проектов, размещенных на сайте dyurtyuli.vipplan.ru мы можем выполнить из требуемых вам строительных материалов: ячеистый бетон (газобетон, пеноблок), керамоблок, кирпич, шлакоблок, бетонный блок, дерево (брус, клееный брус), каркасная технология (деревянный каркас, металлокаркас (ЛСТК)).

Фасад дома и его наружную отделку так же возможно выполнить с применением различных облицовочных материалов: структурной штукатурки, (с утеплителем и без), сайдингом (пластиковый или металлосайдинг), фиброплитами, кирпича.

 
6 Избранные
проекты

Доставка проектов по России: Москва (Московская область), Санкт-Петербург (Ленинградская область), Краснодар, Ростов-на-Дону, Ставрополь, Сочи, Волгоград, Новосибирск, Белгород, Брянск, Воронеж, Саратов, Хабаровск, Астрахань, Нальчик, Владикавказ, Екатеринбург, Тюмень, Самара, Нижний Новгород, Казань, Пермь, Уфа, Челябинск, Красноярск, Ханты-Мансийск, Иркутск, Курган, Оренбург, Омск, Томск, Барнаул, Новокузнецк, Кемерово, Абакан, Чита, Якутск, Южно-Сахалинск, Петропавловск-Камчатский и страны ближнего зарубежья: Белоруссия, Украина, Казахстан